岡崎市中島町第14 全3棟・3号棟

2,490万円

愛知県岡崎市中島町字戸井8-8 他

名鉄西尾線「西尾口」駅徒歩58分

価格
2,490万円
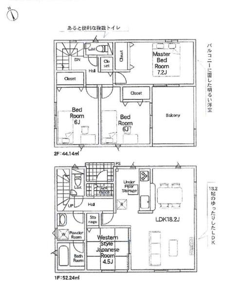
間取り
4LDK
土地面積
127.65㎡
所在地
愛知県岡崎市中島町字戸井8-8 他
交通

名鉄西尾線西尾口」駅 徒歩58分

建物面積
96.38㎡
築年月
2025年12月(新築)

物件の特徴

  • TVモニタ付きインターホン

  • 独立洗面台

  • 浴室乾燥機

セールスポイント

★ご内覧でクオカードをプレゼント!★内覧予約受付中◆資料請求も可能◇ご成約頂いたお客様には選べるプレゼントをご準備☆

ポイント

夢が膨らむ新築一戸建て

基本情報

販売戸数
-
総戸数
-
間取り / 詳細
4LDK
向き
-
建物面積(坪数)
96.38㎡(29.15坪)
土地面積(坪数)
127.65㎡(38.61坪)
建ぺい率 /
容積率
60%/180%
築年月
2025年12月(新築)
駐車場 /
月額料金
有(2台) -
土地権利
所有権
土地
(敷金 / 保証金)
- / -
建物構造
木造 / 2階建
傾斜地部分面積
-
路地状敷地
-
私道負担面積
-
セットバック
-
高圧線下面積
-
施工会社
-
用途地域
第二種中高層住居専用
地目 / 地勢
宅地 / -
接道状況
三方(北 公道 4.5m)(東 公道 4.5m)(西 公道 4.5m)
国土法届出要否
不要
都市計画
市街化区域
総区画数 /
販売区画数
-/-
現況
完成済み
その他
法令上の制限
高度地区
取引態様
一般媒介
引渡し
相談
取引条件の
有効期限
2026年03月15日

設備条件

設備条件
  • 陽当り良好 / 閑静な住宅地 / バリアフリー / 建設住宅性能評価書付 / カードキー / バルコニー / ルーフバルコニー / プロパンガス / 公営水道 / 公共下水 / 24時間換気システム / 電気有 / 駐車2台可 / ガスコンロ / コンロ2口以上 / システムキッチン / コンロ3口 / カウンターキッチン / 追焚機能浴室 / 浴室乾燥機 / 温水洗浄便座 / 洗髪洗面化粧台 / トイレ2ヶ所 / 浴室1坪以上 / 独立洗面台 / 暖房 / 床下収納 / TVモニタ付インターホン / 複層ガラス
設備(その他)
    -

その他

物件番号
99011628
管理コード
129001-23459
建築確認番号
第HPA-25-10847-1号
情報更新日
2026年03月01日
次回更新予定日
2026年03月15日
取扱会社
  • 株式会社ハッピー住まいる
  • 愛知県岡崎市柱曙3丁目7-12 
  • TEL:0564-64-3005
  • 愛知県知事 (3) 第22220号
  • (公社)愛知県宅地建物取引業協会会員
    東海不動産公正取引協議会加盟

近隣の物件

  1. 岡崎市本宿町・中古戸建

    岡崎市本宿町字上トコサフ

    4LDK (112.37㎡)

    999万円

  2. 岡崎市日名本町・中古戸建

    岡崎市日名本町

    3LDK (65.07㎡)

    2,079万円

  3. 岡崎市井ノ口町・中古戸建

    岡崎市井ノ口町字河原西

    3LDK (67.06㎡)

    1,999万円

  4. 岡崎市矢作町西林寺・中古戸建

    岡崎市矢作町字西林寺

    4LDK (101.88㎡)

    2,180万円

よく見られている物件

  1. 岡崎市松橋町・中古戸建

    岡崎市松橋町2丁目

    6SDK (139.03㎡)

    4,260万円

  2. 西尾市西幡豆町24-2期 全2棟・2号棟

    西尾市西幡豆町貝吹

    1LDK (49.89㎡)

    1,590万円

  3. 岡崎市矢作町 全3棟・2号棟

    岡崎市矢作町字北河原

    4LDK (105.16㎡)

    3,5995,000

  4. 岡崎市中島西町1期 全2棟・2号棟

    岡崎市中島西町2丁目

    4SLDK (106.71㎡)

    3,299万円

岡崎市中島町第14 全3棟・3号棟

岡崎市中島町第14 全3棟・3号棟

2,490万円

-

4LDK(96.38㎡)

お気軽にお問い合わせください

無料お問い合わせ

株式会社ハッピー住まいる

0564-64-3005

10:00~19:00

(休:水曜日)