岡崎市赤渋町4期 全1棟・1号棟

3,899.5万円

愛知県岡崎市赤渋町字寺前15-2

愛知環状鉄道「六名」駅徒歩31分

価格
3,899.5万円
間取り
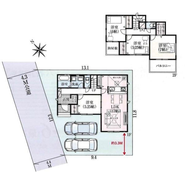
4LDK
土地面積
133.10㎡
所在地
愛知県岡崎市赤渋町字寺前15-2
交通

愛知環状鉄道六名」駅 徒歩31分

建物面積
108.88㎡
築年月
2026年4月(予定)

物件の特徴

  • TVモニタ付きインターホン

  • 独立洗面台

  • 浴室乾燥機

セールスポイント

★ご内覧でクオカードをプレゼント!★内覧予約受付中◆資料請求も可能◇ご成約頂いたお客様には選べるプレゼントをご準備☆

ポイント

夢が膨らむ新築一戸建て

基本情報

販売戸数
-
総戸数
-
間取り / 詳細
4LDK
向き
-
建物面積(坪数)
108.88㎡(32.93坪)
土地面積(坪数)
133.10㎡(40.26坪)
建ぺい率 /
容積率
60%/200%
築年月
2026年4月(予定)
駐車場 / 月額
有(2台) / -
土地権利
所有権
土地
(敷金 / 保証金)
- / -
建物構造
木造 / 2階建
傾斜地部分面積
-
路地状敷地
-
私道負担面積
-
セットバック
-
高圧線下面積
-
施工会社
-
用途地域
第一種中高層住居専用
地目 / 地勢
宅地 / -
接道状況
一方(北西 公道 4.3m)
国土法届出要否
不要
都市計画
市街化区域
総区画数 /
販売区画数
-/-
現況
未完成
その他
法令上の制限
準防火地域
取引態様
一般媒介
引渡し
相談
取引条件の
有効期限
2026年04月25日

設備条件

設備条件
  • 陽当り良好 / 閑静な住宅地 / バリアフリー / 建設住宅性能評価書付 / カードキー / バルコニー / ルーフバルコニー / 都市ガス / 公営水道 / 公共下水 / 24時間換気システム / 電気有 / 照明器具付き / 駐車2台可 / ガスコンロ / システムキッチン / カウンターキッチン / 追焚機能浴室 / 浴室乾燥機 / 温水洗浄便座 / 洗髪洗面化粧台 / トイレ2ヶ所 / 浴室1坪以上 / 独立洗面台 / 床下収納 / ウォークインクロゼット / TVモニタ付インターホン / 複層ガラス
設備(その他)
    -

その他

物件番号
103000238
管理コード
129001-23948
建築確認番号
第HPA-25-14587-1号
情報更新日
2026年04月11日
次回更新予定日
2026年04月25日
取扱会社
  • 株式会社ハッピー住まいる
  • 愛知県岡崎市柱曙3丁目7-12 
  • TEL:0564-64-3005
  • 愛知県知事 (3) 第22220号
  • (公社)愛知県宅地建物取引業協会会員
    東海不動産公正取引協議会加盟

近隣の物件

  1. 岡崎市本宿茜 全1棟・A号棟

    岡崎市本宿茜1丁目

    3LDK (82.82㎡)

    2,990万円

  2. 岡崎市中島町 全3棟・3号棟

    岡崎市中島町字薬師

    4LDK (101.86㎡)

    3,790万円

  3. 岡崎市中島町 全3棟・2号棟

    岡崎市中島町字薬師

    4LDK (100.62㎡)

    3,790万円

  4. 岡崎市鴨田町第9 全2棟・1号棟

    岡崎市鴨田町字池内

    4LDK (95.58㎡)

    3,490万円

よく見られている物件

  1. 岡崎市松橋町・中古戸建

    岡崎市松橋町2丁目

    6SDK (139.03㎡)

    4,260万円

  2. 西尾市西幡豆町24-2期 全2棟・2号棟

    西尾市西幡豆町貝吹

    1LDK (49.89㎡)

    1,590万円

  3. 岡崎市細川町第14 全2棟・2号棟

    岡崎市細川町字窪地

    4LDK (98.01㎡)

    3,290万円

  4. 岡崎市矢作町 全3棟・2号棟

    岡崎市矢作町字北河原

    4LDK (105.16㎡)

    3,5995,000

岡崎市赤渋町4期 全1棟・1号棟

岡崎市赤渋町4期 全1棟・1号棟

3,8995,000

-

4LDK(108.88㎡)

お気軽にお問い合わせください

無料お問い合わせ

株式会社ハッピー住まいる

0564-64-3005

10:00~19:00

(休:水曜日)