岡崎市井田町・ネオシティ岡崎壱番館 1104

1,380万円

愛知県岡崎市井田町字3丁目91-2

愛知環状鉄道「北岡崎」駅徒歩29分

価格
1,380万円
間取り
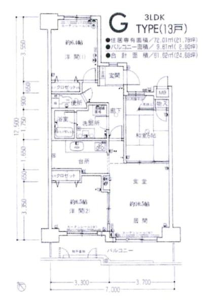
3LDK
向き
南西
所在地
愛知県岡崎市井田町字3丁目91-2
交通

愛知環状鉄道北岡崎」駅 徒歩29分

専有面積
72.01㎡
築年月
1991年2月(築34年)

物件の特徴

  • 室内洗濯機置場

  • 独立洗面台

  • 浴室乾燥機

  • オートロック

基本情報

管理費
7,668円
修繕積立金
12,346円
修繕積立基金
-
間取り / 詳細
3LDK
向き
南西
専有面積
72.01㎡
バルコニー面積
9.61㎡
その他面積
-
-
-
所在階 / 階建て
11階 / 15階建
建物構造
鉄骨鉄筋コンクリート
築年月
1991年2月(築34年)
種別
中古マンション
駐車場 /
月額料金
空有 5,500円
土地権利
所有権
土地
(敷金 / 保証金)
- / -
国土法届出要否
不要
接道状況
-
用途地域
準工業
地勢
-
都市計画
-
現況
空家
引渡し
相談
取引態様
仲介
棟総戸数
225戸
管理形態
管理会社に全部委託
管理会社 /
管理組合有無
- / 有
リフォーム
    2025年5月
    キッチン 浴室 壁 床 全室 洗面所 給湯室 建具
取引条件の
有効期限
2026年01月25日

設備条件

設備条件
  • ペット相談 / ペット飼育可 / 陽当り良好 / 閑静な住宅地 / リフォーム済 / 眺望良好 / 室内洗濯機置場 / フローリング / バルコニー / 都市ガス / 公営水道 / 公共下水 / 電気有 / 駐輪場 / バイク置場あり / ガスコンロ / コンロ2口以上 / システムキッチン / コンロ3口 / 追焚機能浴室 / 浴室乾燥機 / 温水洗浄便座 / 洗髪洗面化粧台 / 独立洗面台 / オートロック
設備(その他)
    -

その他

物件番号
97071282
管理コード
129001-23204
建築確認番号
-
情報更新日
2026年01月11日
次回更新予定日
2026年01月25日
取扱会社
  • 株式会社ハッピー住まいる
  • 愛知県岡崎市柱曙3丁目7-12 
  • TEL:0564-64-3005
  • 愛知県知事 (3) 第22220号
  • (公社)愛知県宅地建物取引業協会会員
    東海不動産公正取引協議会加盟

岡崎市井田町・ネオシティ岡崎壱番館

岡崎市井田町・ネオシティ岡崎壱番館

1,380万円

7,668円

3LDK(72.01㎡)

お気軽にお問い合わせください

無料お問い合わせ

株式会社ハッピー住まいる

0564-64-3005

10:00~19:00

(休:水曜日)